projectroom
architecture
graphic design
info
projectroom
architecture
graphic design
info
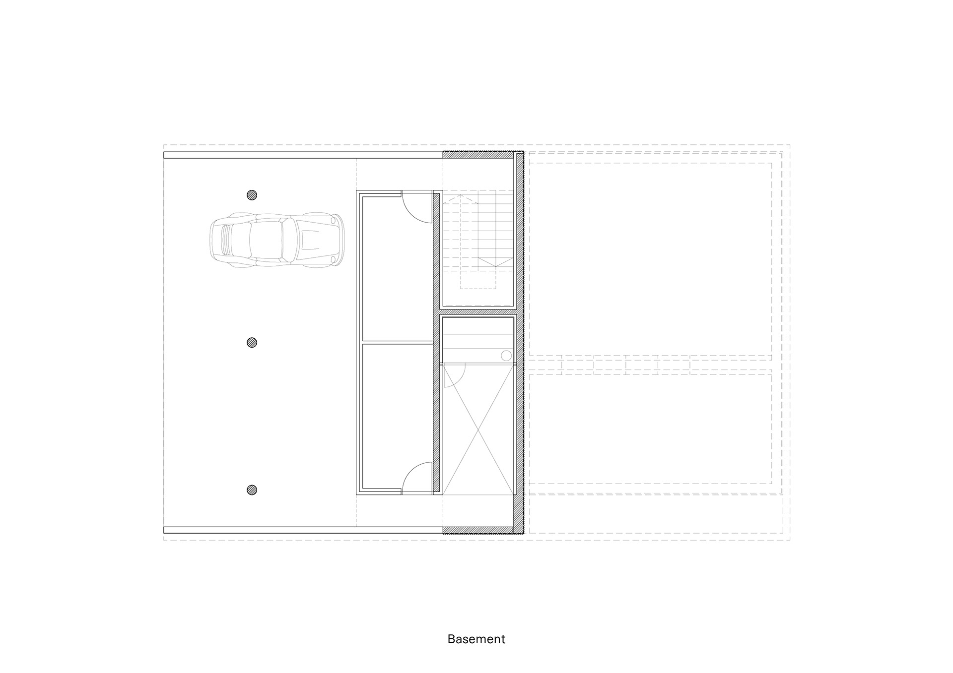
P151 Two-dwelling building
Type: architecture and interior design
Team: Veronika Juhász and
Gábor Fábián DLA
Location: Budapest, XII. district
Area: 400 sq.m
Photo credit: Balázs Danyi
Link:
építészfórum
Awards:
V4+ Family Houses 2019
↑
Back to Top