&255 Architectural Design
Competition for the Adaptive Reuse
of the Former MSZMP Headquarters
Type: concept plan
Team: projectroom + arkt studio
Fábián Gábor DLA, Dénes Fajcsák,
Veronika Juhász, Dávid Kiss,
Csenge Virág Molnár, Klaudia
Pénzes, Zsombor Zsófi
Location: Budapest XI, Hungary
Date: 2025
Area: 6000 sq m
Visual design: projectroom
Link: építészfórum
Three Times
Around the Earth*
and Back
* The total distance required to transport the construction waste generated by demolishing the building.
COMPLETE DEMOLITION
35 000 m³ of construction waste
1 700 container trips
120 000 km travelled
6 months duration
HUF 1.5 billion in costs
35 000 m³ of construction waste
1 700 container trips
120 000 km travelled
6 months duration
HUF 1.5 billion in costs
+
STRUCTURAL CONSTRUCTION
11 000 m³ of material
1 500 concrete truck trips
100 000 km travelled
6 months duration
HUF 2 billion in costs
11 000 m³ of material
1 500 concrete truck trips
100 000 km travelled
6 months duration
HUF 2 billion in costs
Change of mindset is needed
Act eco-friendly
Value the existing
Act responsibly
Value the existing
Act responsibly
Do not demolish
Do not build unnecessarily
Reuse
Find the potential in spatial reserves
Do not build unnecessarily
Reuse
Find the potential in spatial reserves
Seek unique spatial situations
Choose uniqueness
NEW CONSTRUCTION
Gross floor area 15 000 m²
Residential area 12 000 m²
Cost HUF 17 billion
Revenue HUF 27 billion
Profit HUF 10 billion
Gross floor area 15 000 m²
Residential area 12 000 m²
Cost HUF 17 billion
Revenue HUF 27 billion
Profit HUF 10 billion
ADAPTIVE REUSE
Gross floor area 6 000 m²
Residential area 4 000 m²
Cost HUF 2.5 billion
Revenue HUF 10 billion
Profit HUF 7.5 billion
Gross floor area 6 000 m²
Residential area 4 000 m²
Cost HUF 2.5 billion
Revenue HUF 10 billion
Profit HUF 7.5 billion
The difference of a single glass of water. Protecting our environment is worth this sacrifice for future generations, isn't it?
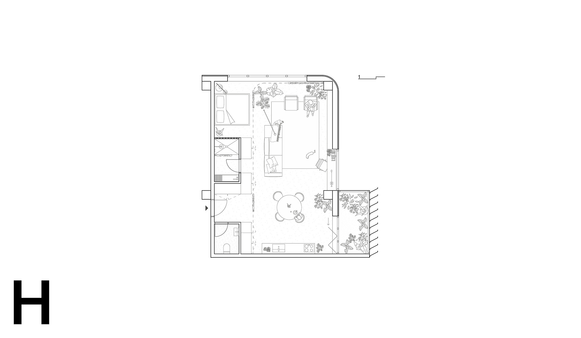
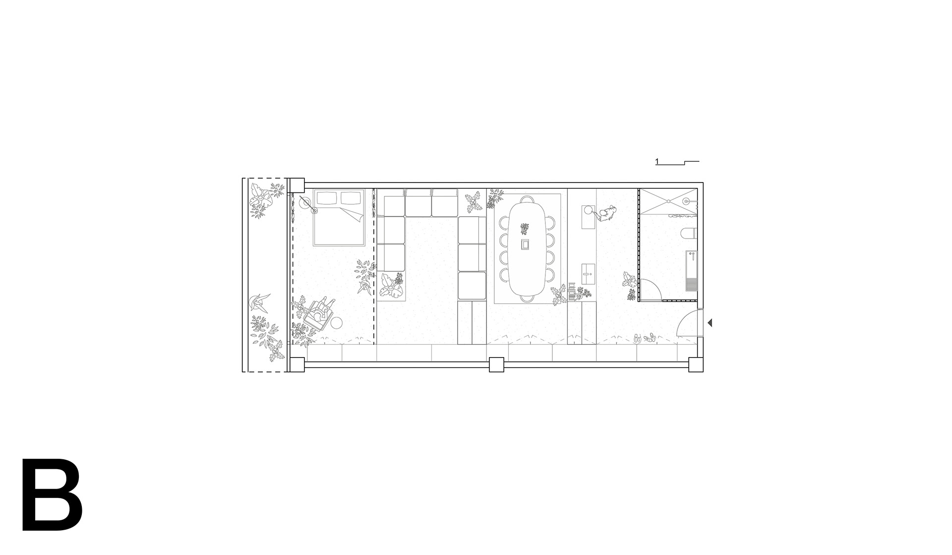
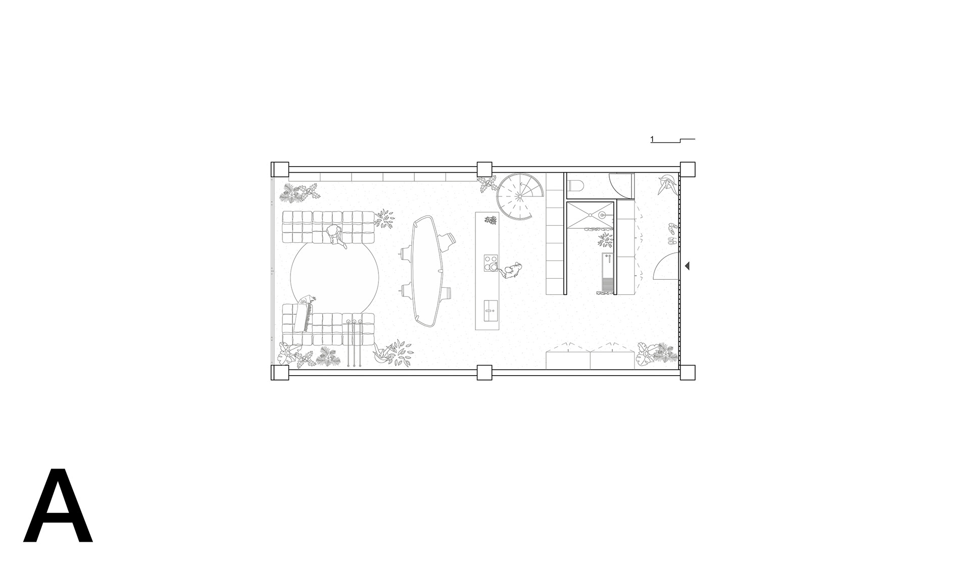
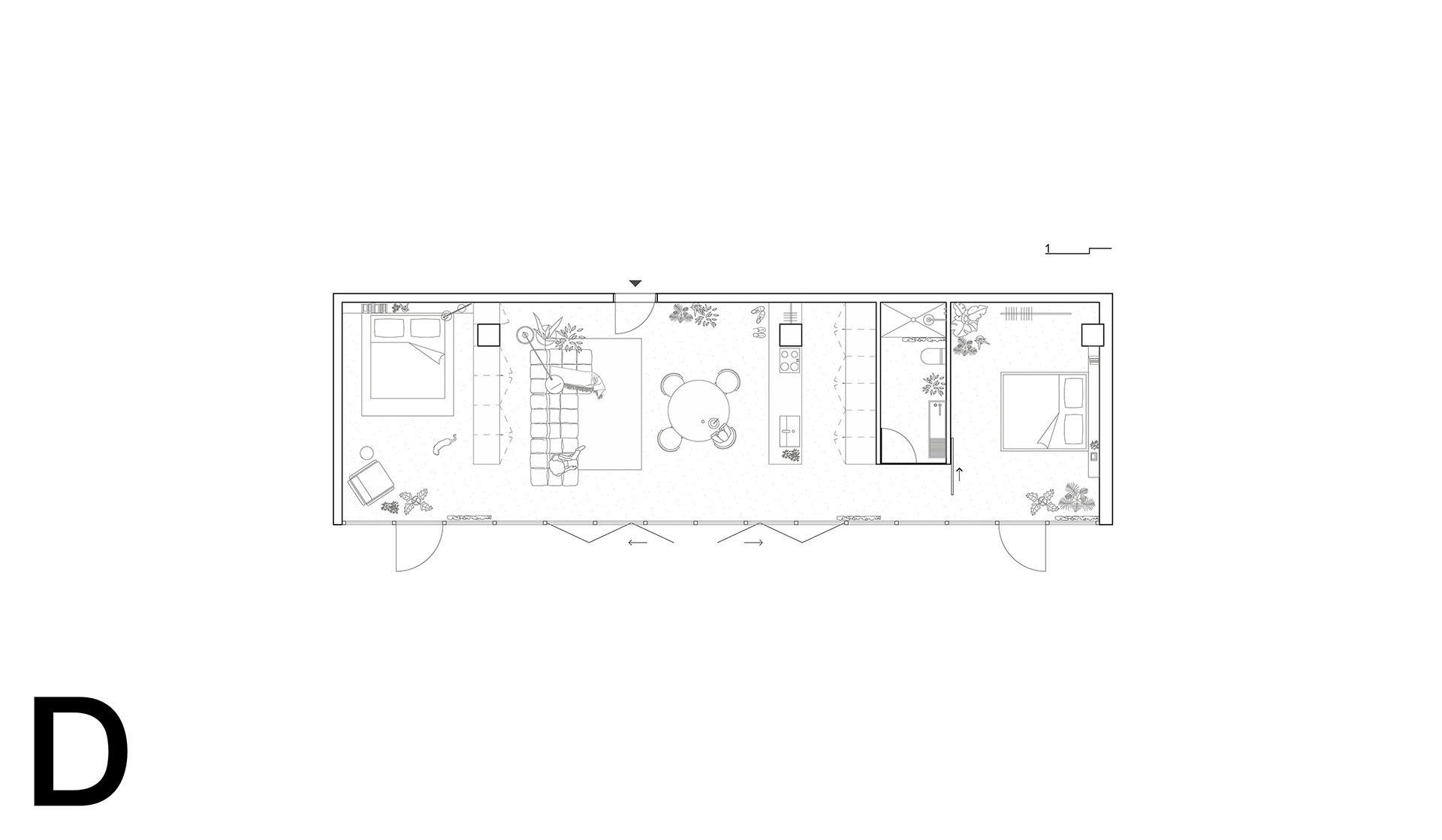
Our proposal does not primarily respond to the specific question posed by the competition brief. Instead, it draws attention to the ecological value of existing buildings and to the spatial potential inherent within them.
Rather than creating generic, standard housing units that merely meets contemporary demands, we seek the unique and the distinctive. Achieving this does not require demolishing our existing buildings; value can also be generated through their adaptive reuse.
Moving toward a sustainable society requires a shift in mindset. We must reconsider our fundamental beliefs. First, we question the basic cultural assumption that more is always better than less. What is rare becomes more valuable. To illustrate this conviction, we have strived to intervene as minimally as possible, activating the building’s inherent qualities and spatial reserves.
According to the jury, however, the concept was “overly idealistic; the architectural narrative is more utopian than feasible.”