projectroom
architecture
graphic design
info
projectroom
architecture
graphic design
info
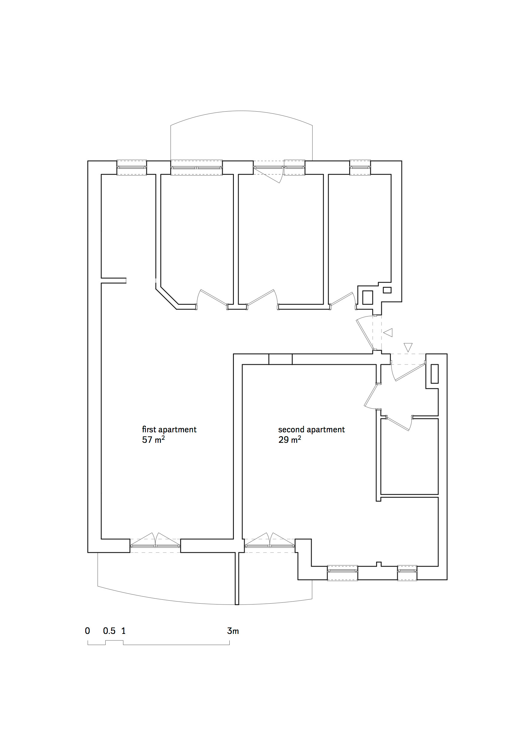
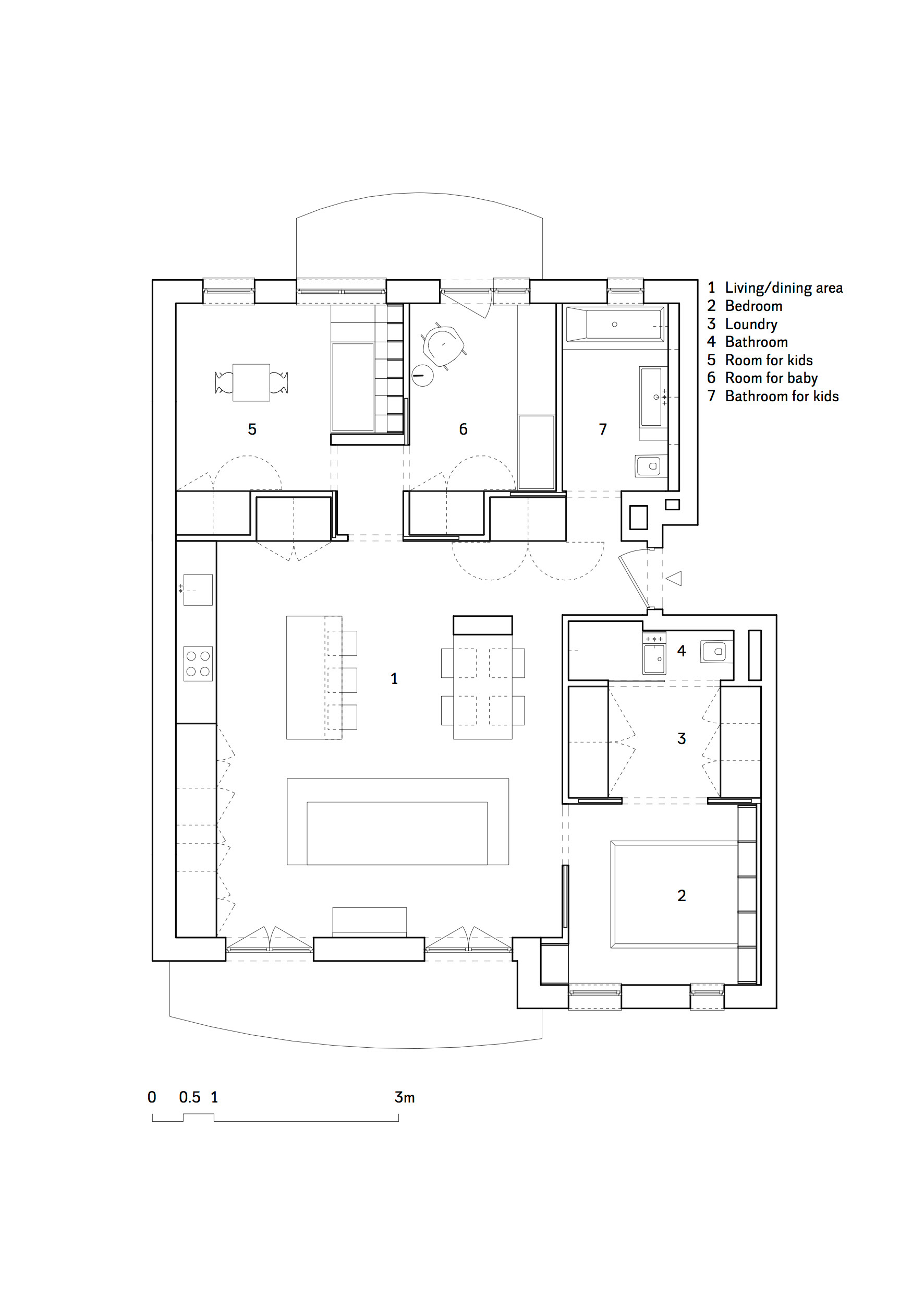
&121 Combining two adjacent
flats to use as one
Type: renovation
Team: Endre Glück – A3 Építész and
Veronika Juhász – projectroom
Location: Budapest, Hungary
Area: 88 sq m
Photo: Zsolt Frikker
↑
Back to Top