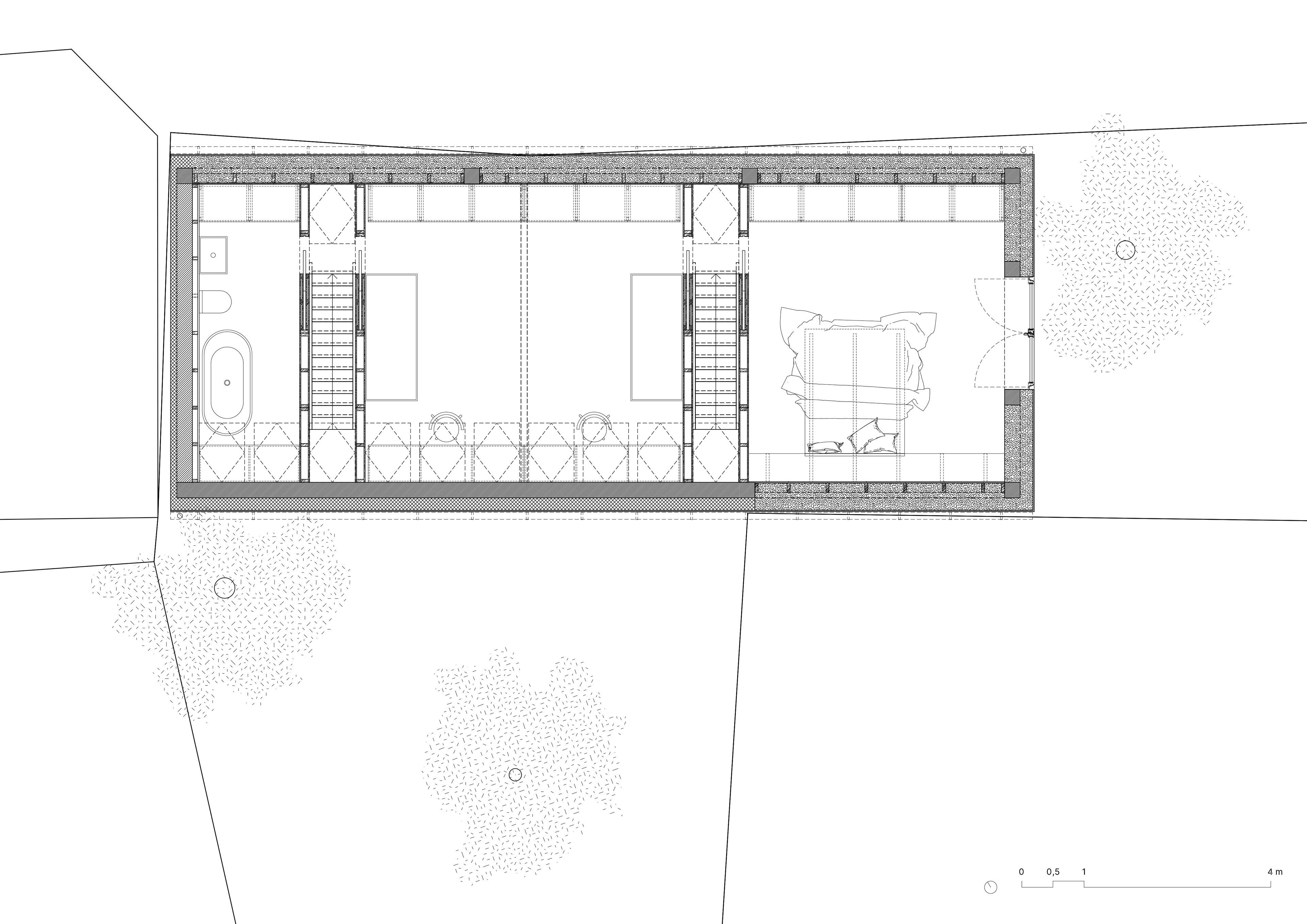
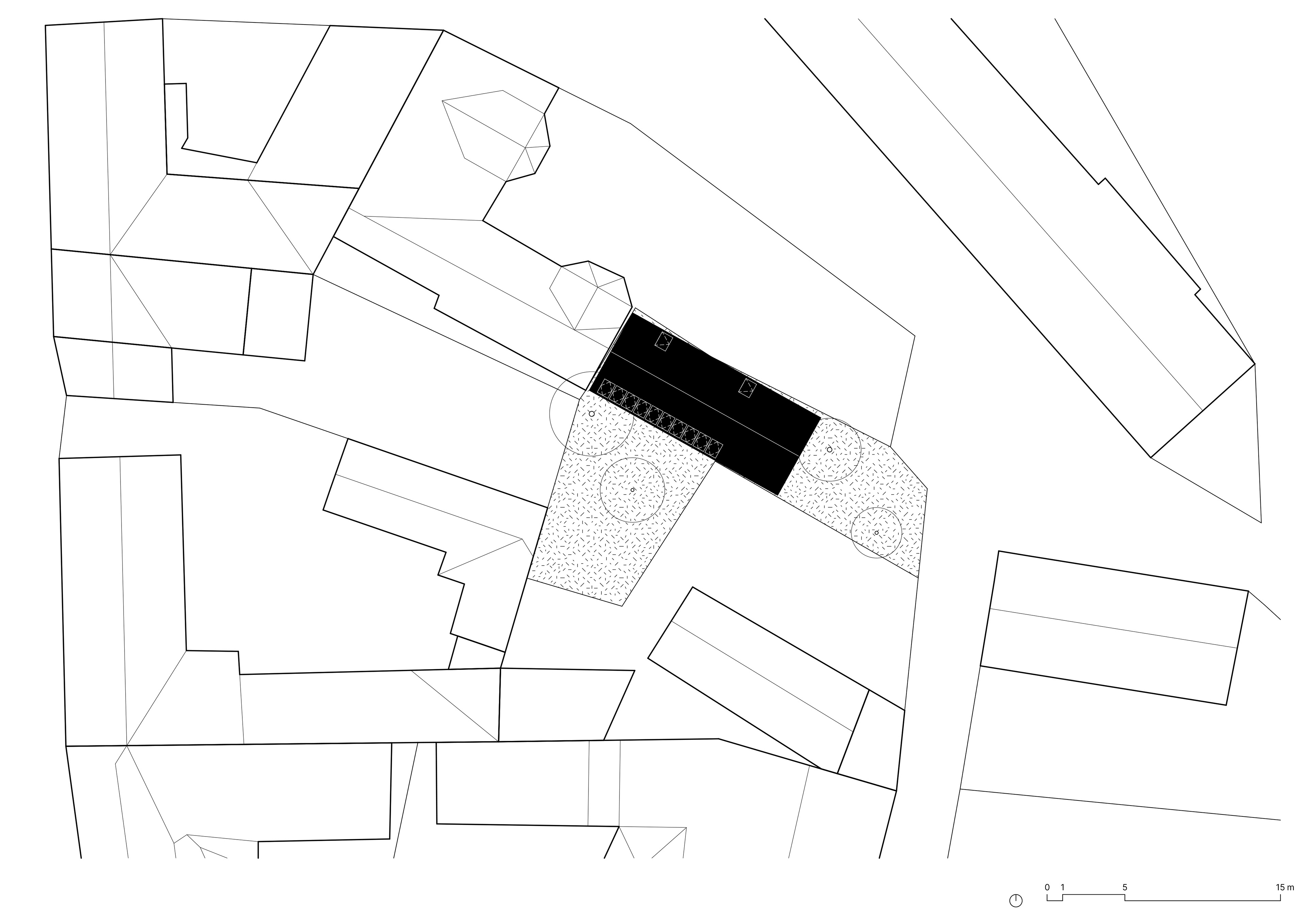
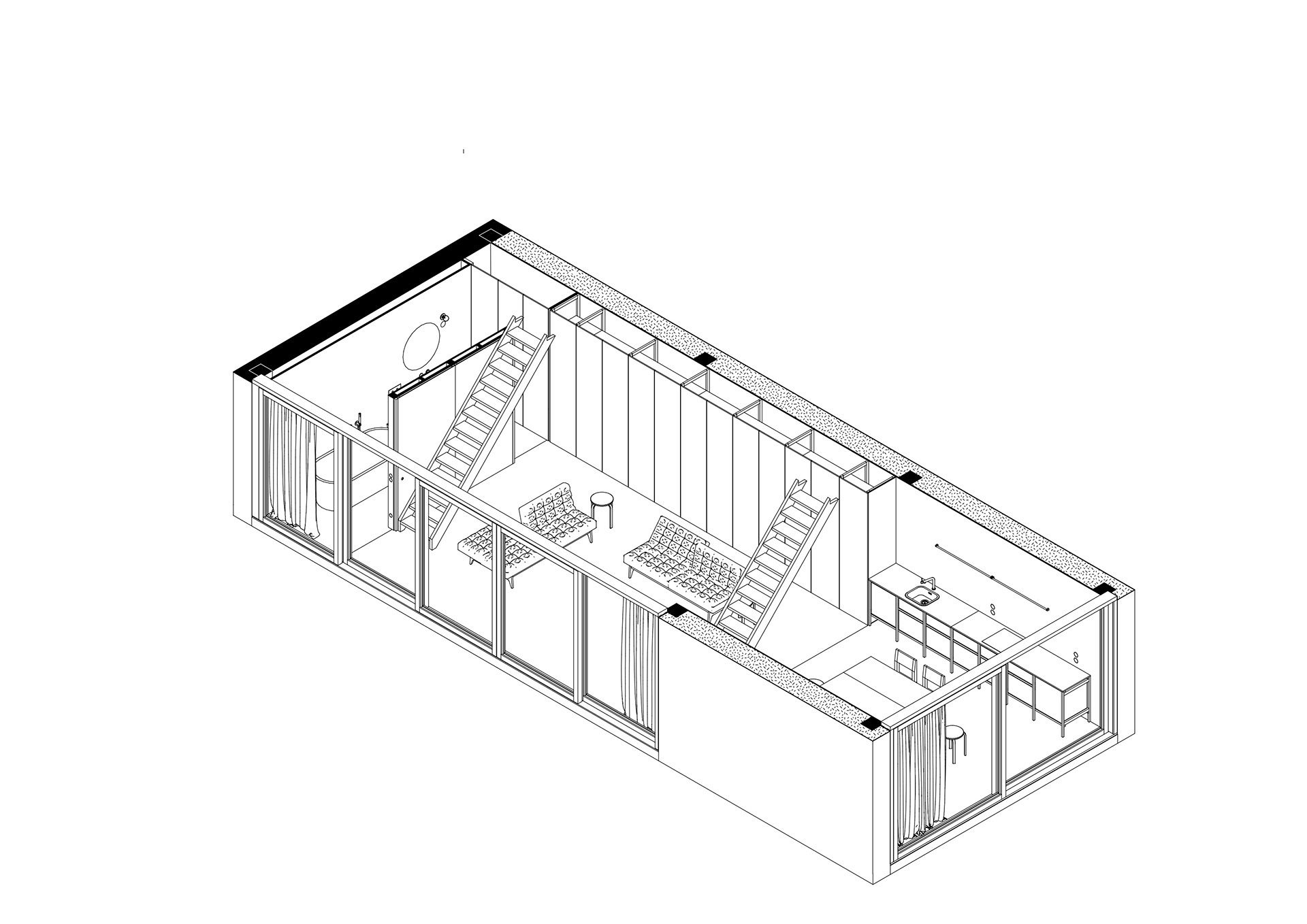
P192 Hempcrete house
Type: architecture, interior design
and furniture making
Team: Veronika Juhász and
Gábor Fábián DLA
Location: Szentendre, Hungary
Date: 2019–2023
Area: 105 sq m
Link: építészfórum
HU
Hogyan lesz növényből ház?
A kender az egyik legősibb, mégis legmodernebb alapanyag, amely újra felfedezésre került az építészetben.
A növény gyorsan növekszik, kevés vizet igényel, vegyszerek nélkül is jól terem, miközben termesztése során jelentős mennyiségű szén-dioxidot köt meg. Építőanyagként való alkalmazása így nemcsak környezetkímélő, hanem aktívan karbon-negatívhatású is lehet.
A kendervályog (angolul hempcrete) a kender pozdorjából, mészből és vízből készülő kompozit anyag. Az így kapott könnyű, páraáteresztő és jó hőszigetelő anyag falak, tetők és padlók építésére egyaránt használható. Nem teherhordó, így jellemzően fa vázas szerkezetek kitöltő anyaga. Legfontosabb tulajdonságai közé tartozik:
Kiváló hő- és páratechnikai viselkedés: természetesen szabályozza a belső klímát, kiegyenlíti a hőingadozást, és elősegíti a pára diffúzióját. ––– Tűz- és penészállóság: a mész természetes antiszeptikus tulajdonságai miatt nem érzékeny gombásodásra, és magas hőmérsékleten sem éghető. ––– Szénmegkötő képesség: a kender növekedése során szén-dioxidot von ki a légkörből, amely a falazatban hosszú távon megkötve marad. –––Komposztálható és újrahasznosítható: életciklusa végén nem válik hulladékká, hanem visszaforgatható a természetes körforgásba.
A falak pigmentálás nélküli finomszemcsés Hessler mészvakolat kaptak, vizes helységekben és konyhában szappanozva. A mészvakolat a szilárdulása során visszaköti a levegő szén-dioxidját, amit az égetéskor elvesztett. Ez a természetes karbonciklus azt jelenti, hogy a Hessler vakolat karbonlábnyoma az életciklusa során részben semlegesedik. A cementalapú vakolatok gyártása a globális CO₂-kibocsátás kb. 7%-áért felelős, és gyakran műgyantás adalékokat tartalmaznak, amelyek nehezen bomlanak le.
A nyílászárók belül lucfenyő kívül accoya fából készültek. Accoya fa a fenntartható faépítés egyik legérdekesebb, technológiailag is előremutató anyaga. Fenntartható erdőgazdálkodásból származó (jellemzően gyorsan növő) fenyőfát – legtöbbször radiata pine-t – egy kémiailag ártalmatlan, ún. acetilezési eljárással kezelnek. Az eredmény egy olyan faanyag, amely nem veszi fel és nem is adja le a nedvességet olyan mértékben, mint a kezeletlen fa, így méretstabil marad és rendkívül ellenálló a gombásodással, korhadással és rovarokkal szemben. Az Accoya tehát nem „exotikus” fa, hanem egy korszerűen nemesített, megújuló anyag, amely hosszú élettartamával és stabilitásával alternatívát nyújt a trópusi keményfák és a mérgező vegyszerekkel kezelt kültéri anyagok helyett.
A fa falak szigetelése: STEICO flexibilis fagyapot. A termék biológiailag lebomló, az életciklusa végén akár komposztálható is. Gyártás közben keletkező hulladékot újra feldolgozzák, így az anyag zárt körforgásban marad.
A saját kézzel készített bútorokat a lehető legkevesebb faanyaggal terveztük. Csavarmentes fa-fa kapcsolatos vázszerkezetük révén a kenderfal teljes mértékben tud lélegezni, valamint a bútorhoz felhasznált fa mennyiséget minimalizáltuk. A tetőtéri fiókos asztal és komód fiókjai vasalat nélkül, hagyományos fa fiókmechanizmussal működnek.
EN
How Does a Plant Become a House?
Hemp is one of the oldest, yet most contemporary building materials to be rediscovered in architecture.
It grows rapidly, requires very little water, and thrives without the use of chemicals. During cultivation, it captures a significant amount of carbon dioxide, which makes its use as a building material not only environmentally friendly but potentially carbon-negative.
It grows rapidly, requires very little water, and thrives without the use of chemicals. During cultivation, it captures a significant amount of carbon dioxide, which makes its use as a building material not only environmentally friendly but potentially carbon-negative.
Hempcrete is a composite material made from hemp shiv, lime, and water. The resulting material is lightweight, vapour-permeable, and provides excellent thermal insulation. It can be used for walls, roofs, and floors alike. As hempcrete is not load-bearing, it is typically applied as infill within timber-frame structures. Its key properties include:
Outstanding thermal and hygrothermal performance: it naturally regulates indoor climate, smooths temperature fluctuations, and supports vapour diffusion. ––– Fire and mould resistance: due to the natural antiseptic properties of lime, it is resistant to fungal growth and does not burn even at high temperatures. ––– Carbon sequestration: during its growth, hemp absorbs carbon dioxide from the atmosphere, which remains locked within the wall structure over the long term. ––– Compostable and recyclable: at the end of its life cycle, it does not become waste but can return to the natural material cycle.
The walls are finished with a fine-grain Hessler lime plaster, without added pigments; in wet rooms and the kitchen, the surface is treated with soap. During curing, lime plaster reabsorbs the carbon dioxide that was released during lime burning. This natural carbon cycle means that the carbon footprint of Hessler plaster is partially offset over its life cycle. By contrast, cement-based plasters are responsible for approximately 7% of global CO₂ emissions and often contain synthetic resin additives that are difficult to break down.
The windows and doors are made of spruce on the interior and Accoya wood on the exterior. Accoya is one of the most innovative materials in sustainable timber construction. Fast-growing softwood—most commonly radiata pine—from sustainably managed forests is treated through a chemically non-toxic acetylation process. The result is a wood that absorbs and releases significantly less moisture than untreated timber, making it dimensionally stable and highly resistant to rot, fungi, and insects. Accoya is therefore not an “exotic” wood, but a technologically enhanced, renewable material that offers a durable alternative to tropical hardwoods and chemically treated exterior timbers.
The insulation of the timber walls is STEICO flexible wood fibre insulation. The material is biodegradable and can even be composted at the end of its life cycle. Production waste is reprocessed, ensuring the material remains within a closed-loop system.
The custom-made furniture was designed using the smallest possible amount of wood. Thanks to their screw-free wood-to-wood jointed structures, the hemp walls can fully “breathe,” while material use is kept to a minimum. The drawers of the desk and chest operate without metal fittings, using traditional wooden drawer mechanisms.