projectroom
architecture
graphic design
info
projectroom
architecture
graphic design
info
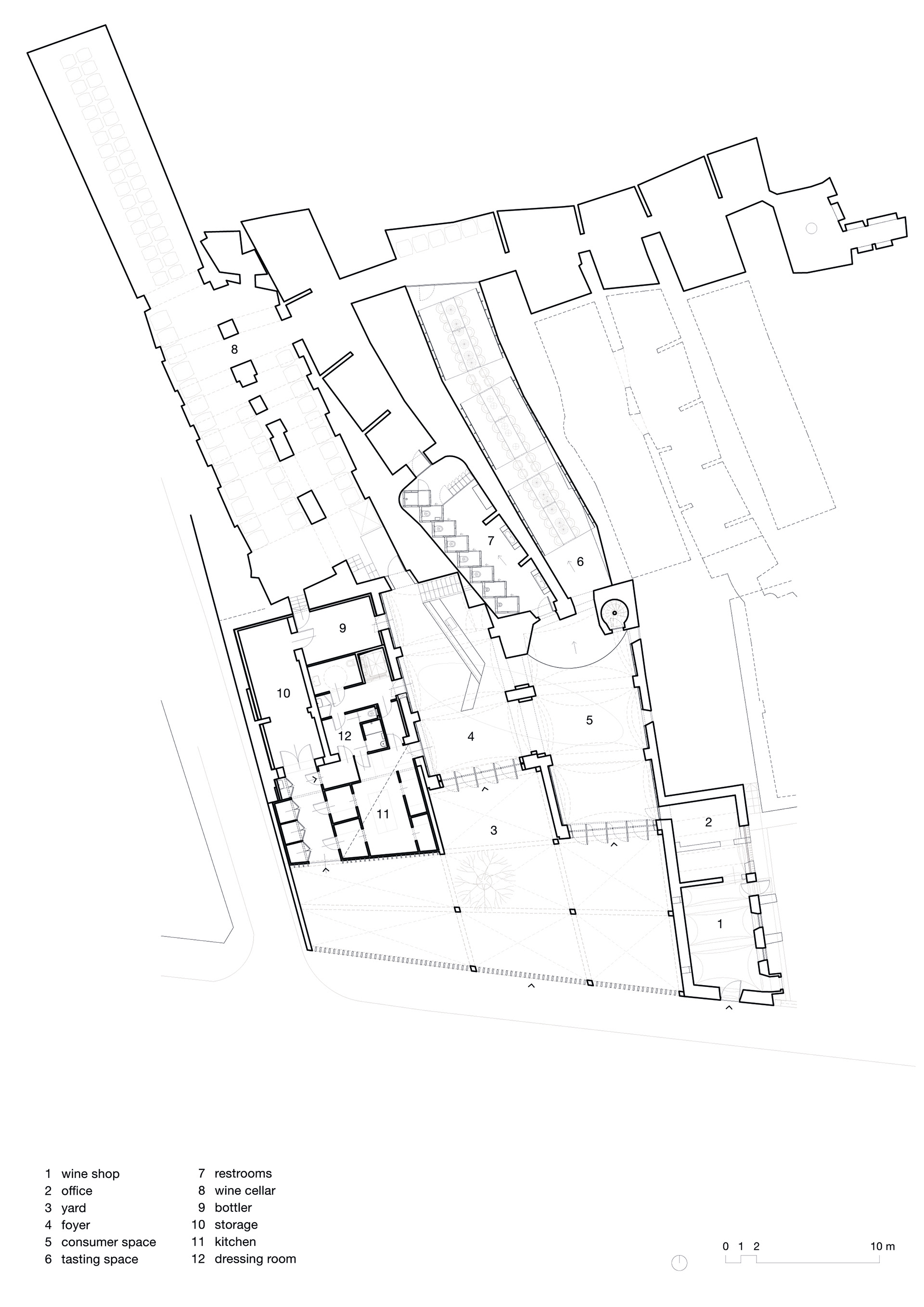
P111 Fusion – Gál Tibor Winery
Architecture:
arkt studio
Gábor Fábián DLA, Dénes Fajcsák
Interior design: Veronika Juhász
Location: Eger, Hungary
Area: 2100 sq m
Photo: Árpád Pintér, Tibor Szántó,
Dénes Fajcsák
Awards
Publication
↑
Back to Top